- Living area
- About 103 m²
- Contents
- About 349 m³
- Construction year
- Built in 1920
- Number of rooms
- 4 rooms (3 bedrooms)
Located in the Arnhem neighborhood of Geitenkamp, we offer this fully NEW and expanded bungalow.
Everything in this apartment is new, making the comfort maximal and allowing it to be finished and furnished to your heart's content!
This bungalow is located in the Geitenkamp neighborhood near 'The Market Square'. It's a lively area with charming homes. In the vicinity, you'll find plenty of green spaces such as those behind 'the gate' and just minutes away lies the beautiful city park 'Hoogte 80'. This park is known for its insane view over the city and the IJssel River, and every year a fantastic theater festival takes place here. The neighborhood has all important amenities within throwing distance, including supermarkets, shops, a Saturday market, sports facilities, and public transportation. Also nearby is the magnificent Veluwe. The bustling center of Arnhem is just a quarter-hour bike ride away, and due to its favorable location relative to the A12/A50 highways, surrounding cities are also easily accessible.
Classification:
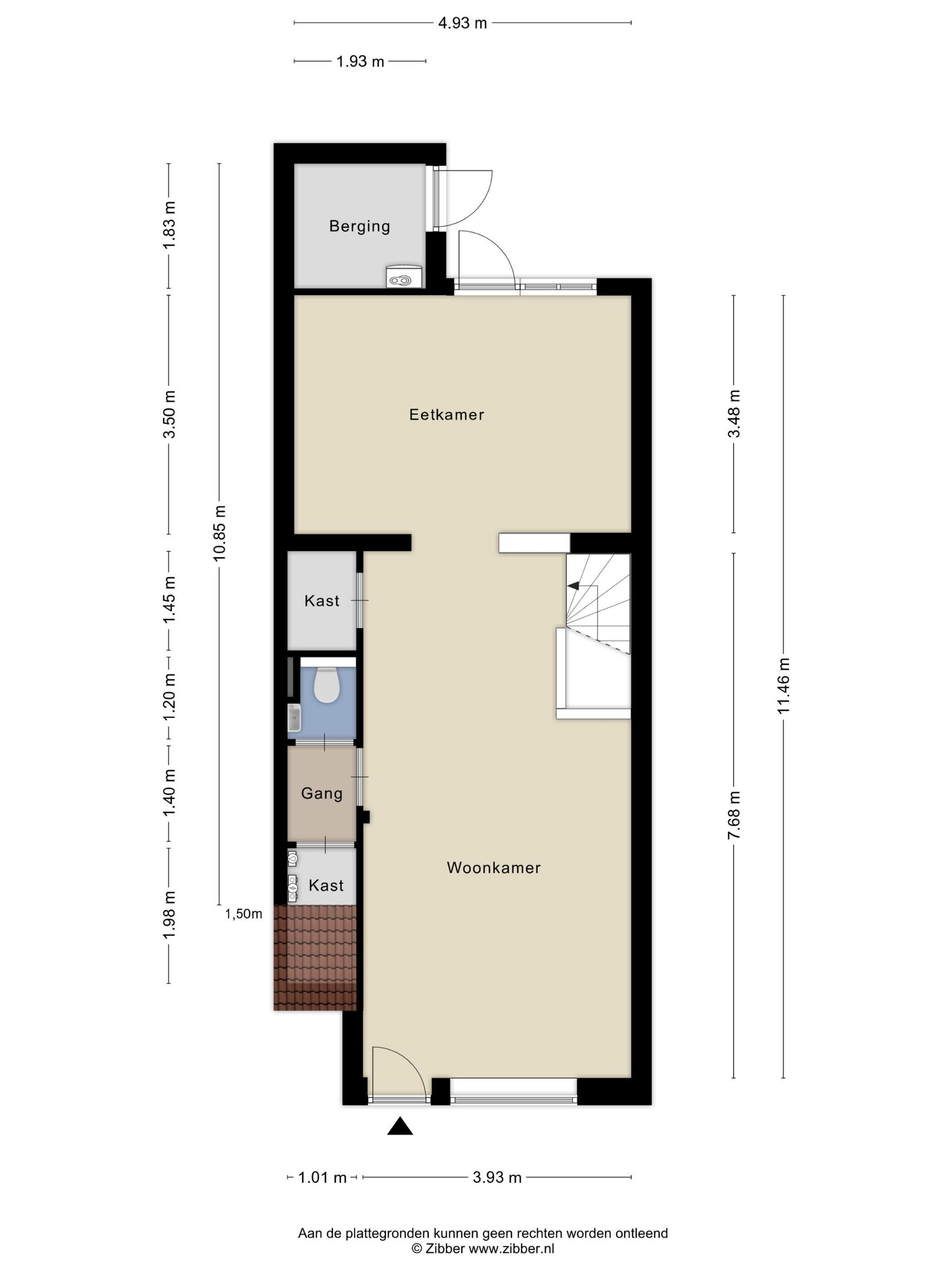
Ground floor:
entrance, with access to the living room. The living room has nice natural light with clean walls and a concrete floor with underfloor heating; the pleasant dimensions make this a pleasure to use as a living space. On the left side is a hallway with pantry/storage and a modern hanging toilet. Behind the living room is the spacious kitchen/living area with access to the inner garden, storage, and back alley. This kitchen space can be customized according to your preferences, such as installing a cooking island with all desired built-in appliances. From the living room, there is a beautiful staircase leading down to the basement.
Basement:
The moment you descend the stairs, you experience the fantastic height of this floor, a majestic hallway with storage and 3 well-proportioned bedrooms. All equipped with large windows and underfloor heating. A separate toilet and the modern bathroom with a walk-in shower and vanity complete this floor.
Details:
- Completely NEW;}
- Completely isolated;}
- Nationally protected cityscape;
- Final energy label
- Sunny back yard with storage and rear entrance;
- Fully equipped with underfloor heating;}
Asking price € 325,000,- n.n.
Acceptance by mutual agreement Read the full description
Transfer
- Asking price
- € 325,000 k.k.
- Status
- Sold subject to conditions
- Acceptance
- In consultation
- Contribution VvE
- € 70.00 per month
Construction
- Object type
- Basement apartment
- Type of construction
- Existing construction
- Construction year
- 1920
- Type roof
- Roof tile-covered
Area and content
- Living area
- 103 m²
- Contents
- 349 m³
Classification
- Number of rooms
- 4 rooms (3 bedrooms)
- Number of bathrooms
- 1 bathroom and 2 separate toilets
- Bathroom facilities
- Walk-in shower, underfloor heating, and vanity unit
- Number of floors
- 2 living levels
- Located at
- Ground floor
- Provisions
- Mechanical ventilation and TV cable
Energy
- Energy label
- A
- Isolation
- Double glazing, wall insulation and floor insulation
- Heating
- Boiler and entire floor heating system
- Hot water
- CV boiler
- Boiler
- Remeha (gas-fired combination boiler from 2024, owned)
Outdoor space
- Location
- Near forest edge, protected location, in wooded surroundings, in residential area and with open view
- Garden
- Place
- location of garden
- Located in the southwest, accessible via the back entrance
Mine space
- Shed / storage
- Attached wooden storage
- Provisions
- Electra
Parking facility
- Type of parking facility
- Public parking
VvE check list
- Company Registration at KvK
- Yes
- Annual meeting
- Yes
- Periodic contribution
- Yes (€ 70,00 per month)
- Reserve fund present
- Yes
- Maintenance plan
- Yes
- Saddle insurance
- Yes
Energy consumption in Arnhem
Energy label this property
Energielabel A
Energy label publication:
Annual electricity consumption
(Average apartment in Arnhem)
Annual gas consumption
(Average apartment in Arnhem)
* Figures are derived from CBS and are intended as an indication and may differ for this property
Mortgage costs indicator
Own contribution:
Savings / excess value
Interest:
Lowest 10-year interest rate
Lowest 10-year interest rate
2,88% - Woonfonds Groen Woonge... - NHG
3,1% - Argenta Groen Hypotheek... - 80%
Lowest 20-year interest rate
3,19% - Centraal Beheer Groen... - NHG
3,47% - Argenta Groen Hypothee... - 80%
Lowest 30-year interest rate
3,34% - Centraal Beheer Groen... - NHG
3,64% - Argenta Groen Hypothee... - 80%
Mortgage:
Gross monthly expenses: € 0 p/m
Net monthly expenses: € 0 p/m
How do we calculate this?
The interest rate is based on the lowest 10-year fixed rate for a single mortgage part. The stated rate (2.88% met NHG) was verified on 09-12-2025. This calculation is based on an annuity mortgage that is fully repaid, with monthly payments remaining the same throughout the entire term. The actual interest rate and net monthly costs may vary depending on your personal situation and the mortgage provider. Consult a financial advisor for an accurate calculation and advice. No rights can be derived from this calculation; it is for indicative purposes only.
Documentation
Cadastral map
Living environment
Visit our website
Viewing
To make an offer
Valuation
Search query
Download everything
Viewing solar limits
On the map
Residents of Arnhem
Statistics for postal code area 6823
- Total number of inhabitants
- 6905 residents
- Men
- 50%
- Women
- 50%
Residents of Arnhem
Statistics for postal code area 6823
- until 15 years
- 14%
- 15 to 25 years
- 9%
- 25 to 35 years
- 27%
- 45 to 65 years
- 31%
- 65 and older
- 19%
Households in Arnhem
Statistics for postal code area 6823
- Single without children
- 48%
- Multiple persons without children
- 24%
- Households without children
- 72%
Households in Arnhem
Statistics for postal code area 6823
- Households with one child
- 12%
- Households with multiple children
- 16%
- Households with children
- 28%
Homes in Arnhem
Statistics for postal code area 6823
- Housing for 1945
- 53%
- Houses between 1945 and 1965
- 27%
- Houses between 1965 and 1975
- 2%
- Houses between 1975 and 1985
- 7%
- Houses between 1985 and 1995
- 1%
Homes in Arnhem
Statistics for postal code area 6823
- Homes between 1995 and 2005
- 7%
- Homes between 2005 and 2015
- 2%
- Homes after 2015
- 1%
- Rented apartments
- 70%
- Purchase properties
- 20%
Other income Arnhem
Statistics for postal code area 6823
- Average WOZ value
- € 188.000,-
- People under 65 with disability benefits
- 19%
Other income Arnhem
Statistics for postal code area 6823
- Addresses per square kilometer
- 1660
- "Urbanity (scale 1 to 5)"
- 80%
Moniek Koenders Estate Agency
When I was 16 years old, during an exploratory internship, I got to know real estate through a small reputable office in Arnhem. Soon enough, I had the opportunity to work in the 'back office'. This was still a time when mobile phones and the internet were absent, but we would sit by the fax machine early in the morning waiting for the latest offers and informing buyers and sellers. My great enthusiasm was sparked! After finishing secondary school, I started the real estate training program and continued working at the same office where I did my internship. It's fantastic to be able to experience theory and practice side by side.
After taking the oath as an estate agent and valuer and joining the largest professional group of the NVM, I have now been in the profession for 30 years!
As I have been active for so long in Arnhem and the surrounding area in the purchase, sale, and valuation of homes, I am truly knowledgeable about Arnhem. Of course, I continue to develop myself and as a sideline activity, I have also been active as a mortgage advisor and was the first female chairwoman of the Arnhem branch of the NVM. Therefore, I know well what we are talking about together.
Looking for 'a new place to live' and 'selling your home' are life-changing moments that should not be underestimated. By tackling this together with straightforward advice and clear communication, we can achieve wonderful things. I also call this being active as your 'living coach' to jointly reach the desired goals. Your biggest asset deserves the right full attention!!
Driven by enthusiasm and market knowledge, we will embark on the paths together, and I will provide my advice as a 'housing coach' in the approach you desire.
If you have time for a no-obligation discussion, I would be happy to explain this further and we can discuss your future plans together.
See you soon!
Moniek Koenders
Latest reviews
-
Wildenborglaan 36 3
Within just 2.5 months, Moniek helped me successfully purchase a property. An exceptionally smooth and effective process. Moniek is an extre...
-
Graaf Lodewijkstraat 12
Moniek helped us very well with the sale of our house. Everything went smoothly and she was very involved and considerate. A top real estate...
-
Thorbeckestraat 108
Excellent and reliable real estate agent! Recommended by a friend who had bought a house with Moniek as the purchasing agent. For over a yea...